House Davias Waterfall Estate, Johannesburg
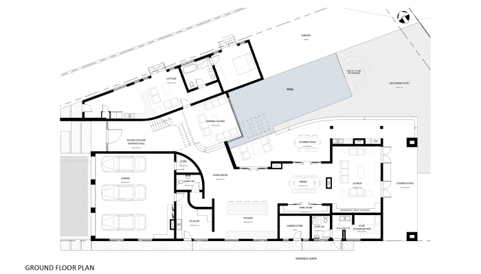
The clients bought a very special stand in Waterfall Estate, overlooking a green belt and a lovely pond. I was commissioned to do the design drawings, estate and council approval. It is currently on site.
The house is designed for a family who loves to entertain. From the sunken lounge, the rim flow pool, and the open plan living area, it is all designed to take advantage of the gorgeous views, and the North facing angles.


































